O nás
Jsme DOMA
Naše hodnoty
Home staging
Nemovitosti
V nabídce
Prodané
Odhad ceny
Development
Pro investory
Reference
Blog
Kontakt
O nás
Jsme DOMA
Naše hodnoty
Home staging
Nemovitosti
V nabídce
Prodané
Odhad ceny
Development
Pro investory
Reference
Blog
Kontakt
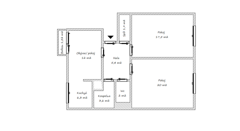
Pronajato, pronájem bytu 3+kk v Černovicích s balkonem a zahradou
pronajato
Galerie
Lokalita
Galerie
\
Ukažte mi všechny fotografie
Kotkova 31, Brno
×
Napište třeba dům na prodej, nejlepší makléř, článek na blogu. Najdeme vám cokoliv.