Moderní mobilní domek 1+kk s chytrou domácností

prodej

O nemovitosti

Mobilní domeček ve vysokém standardu, s moderními technologiemi a možností umístit ho, kamkoliv si přejete. Tiny House může být vaše nová cesta k okamžité relaxaci.

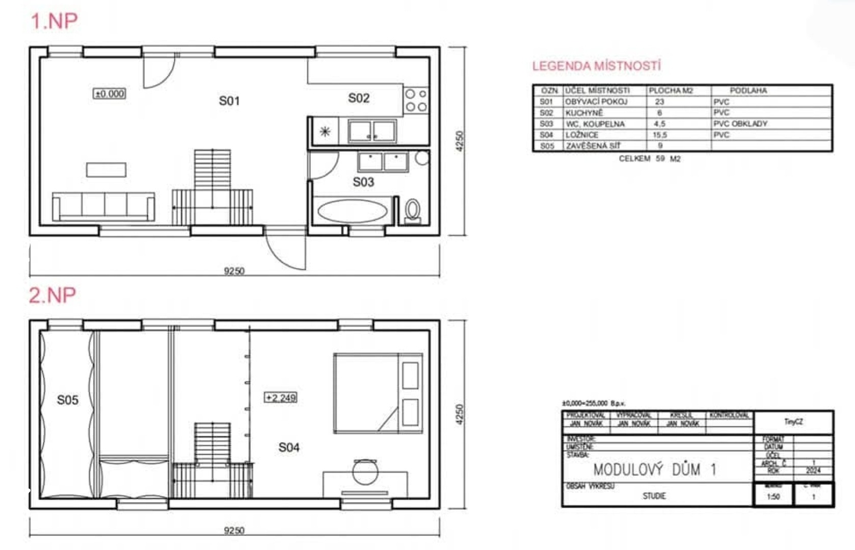
Domek má dispozici 1+kk. Konstrukčně se jedná o dřevostavbu na ocelové konstrukci, která je připravena k přepravě na váš pozemek. Je zateplený, má fasádu a přípojky pro napojení na elektrickou energii, vodu a odpady. Vy jen zvolíte, jestli jej napojíte na kanalizaci či jímku a zda budete odebírat elektrickou energii od dodavatele, nebo po vlastní ose (například ze solárních panelů či agregátu). To samé platí o vodě – Tiny House umožňuje napojení na řád i na vlastní studnu. Dům je vytápěný tepelným čerpadlem, které lze použít jak k teplu, tak k ochlazení domu.

Domek nabízí dvě patra. Přízemí se skládá z kuchyně, koupelny a obývacího pokoje, ze kterého se dostanete do otevřeného prostoru určeného na spaní.

Místo pro kuchyň je připravené pro realizaci budoucí kuchyňské linky dle vašich představ. Nechybí ani obvody na varnou desku, myčku, lednici a další nezbytnosti. Koupelna je už nyní plně vybavena. K dispozici je topný žebřík, vana, toaleta a umyvadlo s přípojkami na pračku a ohřívač vody. Obývací pokoj je středem celého domu. Vedou z něj prosklené dveře na budoucí terasu. Je zde prostor pro jídelní stůl, sedačku a vše, co potřebujete ke komfortnímu posezení. Vrchní patro je snížené a slouží primárně jako ložnice.

Tiny House je vybaven také chytrou domácností. Tepelné čerpadlo si zapnete před příjezdem, světla ovládáte telefonem. Nechybí ani alarm u vstupních dveří a kouřové čidlo. Vše si bude povídat s vaším chytrým telefonem.

A jak se tento domeček dostane na vaši zahradu? Naložíme ho na kamion, přivezeme a dohlédneme na správné položení domu. V ceně je zahrnuta příprava betonové patky, dopravu si hradíte sami.

Velkou výhodou Tiny Housu je i to, že nepotřebuje stavební povolení, pokud si jej postavíte na pozemek určený k rekreaci. Předáme vám projektovou dokumentaci a v případě zájmu poskytneme podklady pro kolaudaci.

Do tohoto domku se vejde i rodina s dětmi, je však ideální pro dvojice či jednotlivce. Máte-li zájem prohlédnout si ho osobně, tento konkrétní domek je k vidění v Moravském Krumlově. Zavolejte nám a domluvte si termín prohlídky. Pokud by se vám hodil spíše menší či větší mobilní domek, můžete si jej také nechat vyrobit. Budeme se na vás těšit.

Dispozice
tiny house
Rozloha
52 m²
Na Bubnu 574

Dokumenty ke stažení

Tady najdete veškeré dokumenty, které vás zajímají.

Zaujala vás tato nemovitost?

Na starost ji má

Barbora Nováková

1 990 000 Kč

Financování

Přemýšlíte, jakým způsobem budete financovat svou novou nemovitost? Hypoteční kalkulačka vám napoví. S konkrétní nabídkou vám pak poradí náš makléř.

Hypoteční kalkulačka
+
-

Měsíční splátka

{{ result }}

Zaujala vás tato nemovitost?

Na starost ji má

Barbora Nováková

1 990 000 Kč